+1 510 594 0794
Available 7 days a week and 24 hours a day for Service Issue Emergencies.
Available 7 days a week between 9 am and 7 pm for Leasing Inquiries & Showings
Available Monday through Thursday 10am - 1pm & 2pm - 5pm and
Fridays 10am - 1pm for In-Office Appointments
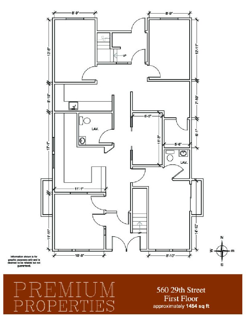
Address: 560 29th Street
Unit #560
City: Oakand
Area: Oakland
SOLD
Size: Medical Use
Living Area: 1
Lot Size: 1
Number of Units: 4
Status: Available
Request A Tour
Contact: Craig Beckerman
Broker, Realtor & Partner
510.594.2033 Direct
nilesh.arothe@yapsody.com
www.premiumunits.com
This Fabulous Property Features:
For Sale
Residential or Medical Office
560 29th Street, Oakland
$395,000.
Medical Dental office in the heart of North Oakland. The property features a fully functional dental office with large waiting room, clerical office, multiple exam rooms, private offices and multiple restrooms. The building is easily divisible into multiple spaces. The building has been substantially upgraded with new systems and has 4++ offstreet parking spaces.
Zoning RU-2 - Residential building converted to medical use. The structure has 14 rooms, 4 bathrooms and utility sinks.
LOCATION
The 29th Street Medial Building is only 1 block away from Pill Hill and a few blocks away from the cool shops on Telegraph Ave and the Uptown shopping district. The building is also walking distance to BART and Downtown Oakland.
For your out of town-ers, Oakland is a great East Bay location central to the entire Bay Area and has Easy Transportation access to San Francisco, public transportation and freeways.SIMILAR PHOTOS
+1 510 594 0794
Available 7 days a week and 24 hours a day for Service Issue Emergencies.
Available 7 days a week between 9 am and 7 pm for Leasing Inquiries & Showings
Available Monday through Thursday 10am - 1pm & 2pm - 5pm and
Fridays 10am - 1pm for In-Office Appointments
Copyright 2010-2026, All rights reserved under law.
© Premium Property Management & Development, Inc. dba Premium Properties, CA DRE Lic #01886322